11
$2,998,000 Sale
Listed 1 hour
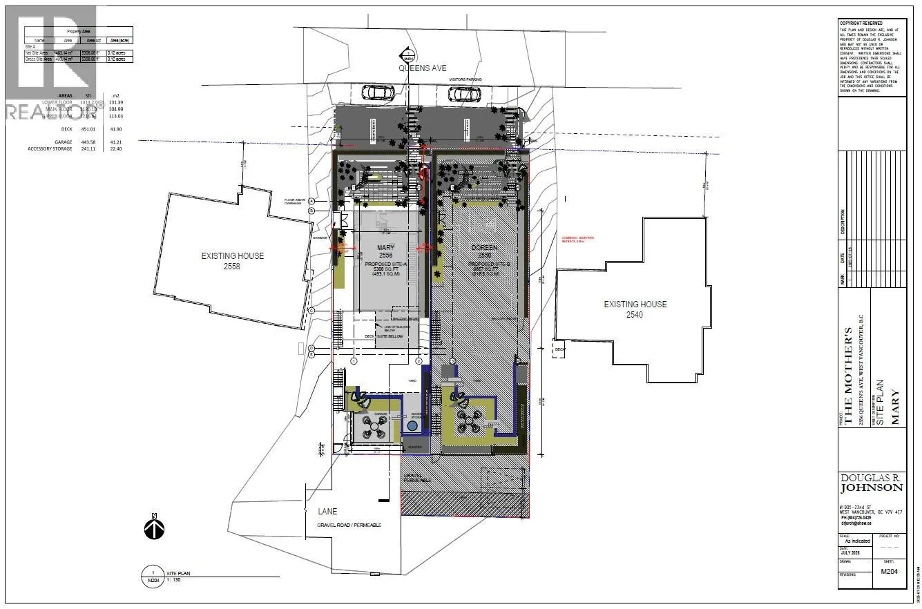
2550 QUEENS AVENUE
· 0
· 0.0
· 0
· 3807
Key Facts
Key facts for 2550 QUEENS AVENUE
Property Type
House, House
Parking
Garage: No, 0 parking
MLS #
R3054448
Size
3807 sqft
Basement
Finished, Unknown (Finished)
Listed on
-
Lot size
-
Tax
-
Days on Market
-
Year Built
2025
Maintenance Fee
-
Description
INCREDIBLE OPPORTUNITY. AMAZING 3800 sqft brand new home with EPIC VIEWS. This home can be built and ready to move into in 12 months! INCREDIBLE DESIGN is already finished, submitted AND APPROVED to the district saving you months of decisions, planning and permit time with the district. The DESIGN...ED IS what one would LOVE TO ENJOY and was inspired by the G´DAY Home that was architecturally created by MCLEOD BOVELL Modern Houses with 3 levels, all having incredible views and done with contemporary style that is TIMELESS. This lot 2550 Queens --has been officially subdivided. All details, subdivision, plans and more can be all reviewed. Imagine in 12 months you could be living in your brand new VIEW LOT IN West Vancouver! Call for details! (id:10452)
Similar Properties (No results)
Listing courtesy of: The Partners Real Estate
This REALTOR.ca listing content is owned and licensed by REALTOR® members of The Canadian Real Estate Association.